
J
KBK Flexible Double Beam Suspension Crane Product Characteristics:
1. The lifting height is higher. Because the lifting hoist is suspended on the small frame between the two
KBK girders, the double-girder crane can provide higher lifting space than the single-girder crane.
2. With larger span,
KBK flexible double-girder suspension crane can be suspended by multi-track, thus realizing a large span to cover a larger storage and production area. The crane can move easily by hand. However, when the span of the crane track is greater than 6 m and the load of the crane is more than 500 kg, we suggest that the crane be driven by an electric friction wheel. Take the plan.
3. Lifting weight: 2000kg;
4. Span up to 7 meters.

The lifting weight of J
KBK flexible light combined suspension crane is 125 kg-2000 kg.
J
KBK flexible light combined suspension crane includes J
KBK-D monorail suspension crane, J
KBK-LD single-beam suspension crane, J
KBK-LS double-beam suspension crane, J
KBK-LSS telescopic beam suspension crane, J
KBK-LM stacker and other forms. It has a wide range of applications, especially for modern production and transportation lines. The product characteristics of J
KBK flexible light combined suspension crane are summarized as follows:
1. Good reliability and stability < br />.
The components of J
KBK flexible light combined suspension crane system are all standard modules, which can ensure large-scale and high-quality production, so the system is very reliable. The main body of the system module is three kinds of cold-rolled profiles with high strength, good rigidity and light self-weight, which ensures the stability of the system.
2. adaptability
J
KBK suspension crane system can be flexibly designed and installed according to the needs of each station in the factory. From fixed-point transportation to high accuracy, multi-point, multi-beat automatic transmission lines can be assembled at will. It can be used in newly designed factory buildings, as well as in the renovation and extension of the system.
3. Easy to install, economical and efficient
J
KBK suspension crane system is easy to install and debug. J
KBK profiles and standard modules can be used only by bolt connection. It can save the space and area of the factory, thus reducing energy consumption and improving enterprise efficiency. The system can be operated manually or automatically or semi-automatically with high efficiency.

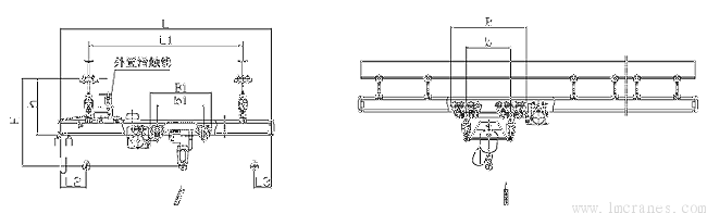
Dimension weight
Five hundred
One thousand
Two thousand
L
Nine thousand
Six thousand and five hundred
Three thousand and five hundred
L1
Eight thousand and five hundred
Six thousand
Three thousand
L2
Seven hundred and eighty-seven
Six hundred and eighty-seven
Six hundred and sixty-two
L3
Four hundred and seven
Four hundred and seven
Five hundred and thirty-two
H
One thousand one hundred and seventy
One thousand three hundred and five
One thousand and four hundred
H
Seven hundred and thirty
Seven hundred and thirty
Seven hundred and thirty
B
Nine hundred and seventy-three
Nine hundred and seventy-three
Nine hundred and seventy-three
B
Five hundred and fifty
Five hundred and fifty
Five hundred and fifty
B1
Seven hundred and seventy-three
Seven hundred and seventy-three
One thousand and twenty-three
B1
Six hundred
Six hundred
Six hundred